ARTICLE【設計打合せ②プランとお見積りのご提示】~リノベーション設計図ができあがるまで~
- 公開日:2020.11.14
- 更新日:2020.12.22
さて、前回のヒアリングの次はいよいよプランの打ち合わせになります。
ヒアリングのときに相談した暮らしの悩みや不安。
初めて、設計図やパースなどの、具体的な形となっていきます。
イメージが形になっていく、とてもわくわくする時間!
今回は、実際にあった設計打ち合わせ(→リノベーション事例「快適引き籠りライフ」)を元に打合せの流れをご紹介していきます。
※この記事は、【設計打合せ①ヒアリング】~リノベーションで解決できるお悩みをご紹介!の続きです。
ヒアリングについて詳しく知るには先にこちらをお読みくださいね。
○【設計打合せ①ヒアリング】~リノベーションで解決できるお悩みをご紹介!~

リノままでは具体的な設計に入る前の、お客様の想いやライフスタイルなどいろいろ話し合う「ヒアリング」。
ご家族のことやお仕事のこと、現在のお住まいの悩みなど、普段の暮らしについて。
実際にあったお客様のご要望とリノベーション事例をご紹介しながらお話しします。
目次
前回の記事で、ヒアリングでは、「どんな暮らしをしたいか」や「今のお部屋の間取りや設備が原因で生活しづらい部分」をお聞きしていくとお話ししました。
この事例でも、「こんな理想の暮らしをしたい」や「今の家でこういう悩みがある」というご意見をいただき、それに沿って初プラン出しを行いました。
この時にリノままの設計担当からお客様にお渡ししているのが、
・平面プラン提案図とパース
・プレゼンテーション資料
・お見積り書
などなどです。
それぞれの資料紹介は追って行いますが、まずはプランのご提案の説明からしていきます。
今回ご紹介するのはこのお住まい。
○快適引き籠りライフ

所在地:渋谷区 / 間取り:ワンルーム / 1LDK / 専有面積:41.23㎡
築年:1970年01月(築47年) / 工事費:722万円 / 家族構成:single
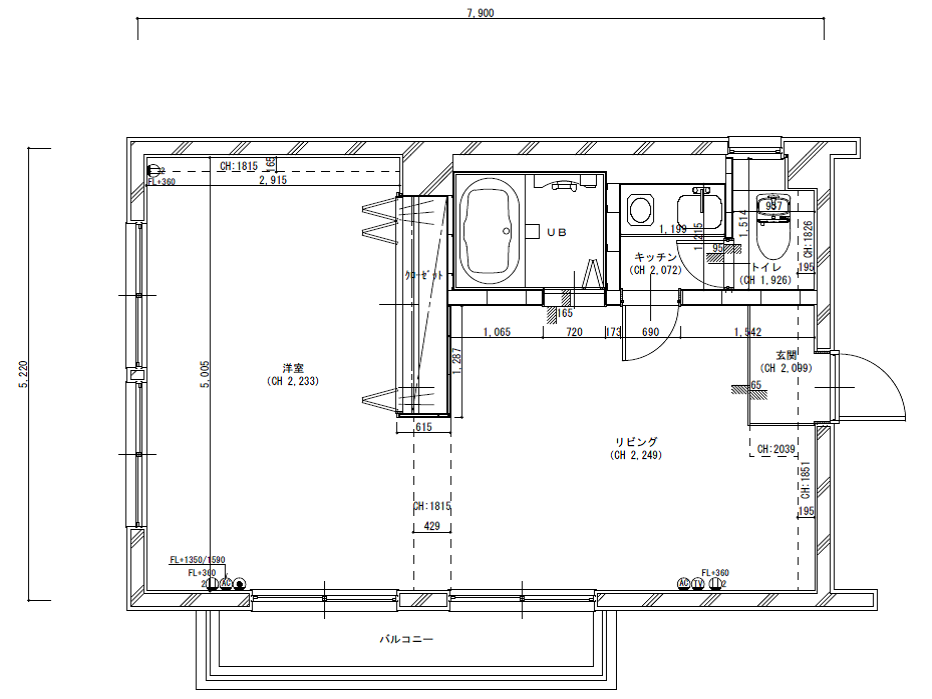
ちなみにこちらがリノベ前の状態。

>〈リノベーション前の間取り図〉
皆さんにとって、「あ、不便だな…」と感じる点はありましたか?
この事例で、実際に改善したいポイントとしてお客様から挙がったのはこんな点。
・玄関入ってすぐリビング!?
・キッチンが狭い!
・トイレはキッチンを通る??
・お風呂前に脱衣スペースがない!!!
こうやってみると結構個性的なつくりになっていますね(笑)
築古のマンションということもあり、今の暮らしには合っていないな…という点がたくさん。
また、こちらのお客様は、「お家で読書をしたり、映画を観たり、インドアな趣味を充実させたい」とのご希望でした。
「快適に引き籠れて、キュウクツに感じないお部屋」というのが今回のテーマに!
40㎡程度のお部屋ですが、窓が多いお部屋なので、自然光を部屋の隅々まで行き届かせることで、広々と解放感のある暮らしをご提案することになりました。
まずは、上記のポイントをクリアして、間取りに落とし込みました。
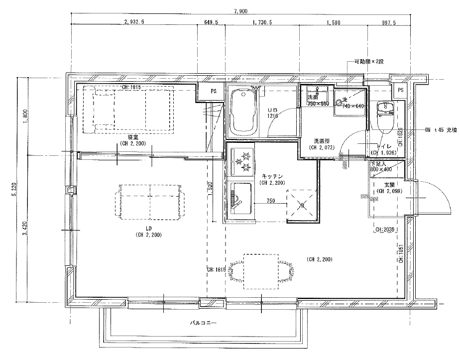
最初にお出ししたのがAプラン。

>〈プランA〉キッチンをお部屋の中心にあるプラン
既存の玄関入ってすぐリビングという形ではなく、一番奥に寝室と、リビングを配置したプランです。
ちゃんと洗面室も用意でき、水回りもまとまっています。
キッチンが対面式でバルコニーからの景色も眺められそうです。
ただ、このプランの場合は、玄関入ってすぐキッチンの通路が見えるため、何か対策をしないと食器棚あたりの雑多な感じが見えてしまいそうです!
また、キッチンがアイランド式に中心にあり、回りを一周できる回遊性があるというメリットの反面、実は配管を下に通すため、キッチンがステージのように一段上がってしまいます。
そこでもう一つキッチンの向きを変えたBプラン。

>〈プランB〉キッチンの向きを変えたプラン
こちらは玄関入ってすぐは冷蔵庫裏の壁があるのでキッチンは見えません!
しかも今回のキッチンは壁の中を通してを排水していくので、キッチンも段差ができません。
ただ、キッチンを囲ったスペースが真ん中にある為、全体的に解放感がありません。
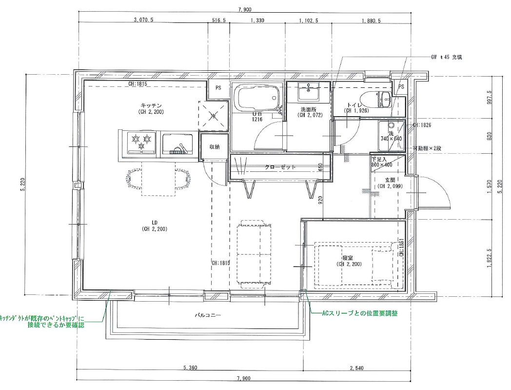
そして最後にCプラン。

>〈プランC〉キッチンを思い切り奥に移動したプラン
こちらは一番キッチンを奥にし、オープンキッチンにしたプラン。
キッチンにいてもリビングにいても景色も眺められ、広がりのある空間になっています。
玄関入った時に奥のリビングまで目線が通るので広さも感じられ、先ほどのマイナスポイントの目線や圧迫感もクリアできそうです。
どのようにプランを練っていくかはお客様のイメージの固まり方次第。
今回はリノベーションお打合せ段階のご紹介用に3つのプランを提案してみました。
このようにプランがいくつかあることで、プラン検討の比較がし易くなりますよね。
例えば、「全体はプランCがいいけど、プランAの方が、寝室にクロゼット収納があっていい」などなど。
自由度の高いリノベーションだからこそ、納得のいく決断をすることが大切。
いろいろな選択肢がある中で、「譲れない条件は?」「優先順位は?」と考えていき、「いちばん自分の理想の暮らしに合った間取り」を探っていきます。
なかなか当日に図面を理解するのは時間がかかるもの。
一旦、プランの細かいご要望はご自宅でじっくり見て頂き、考えて頂くことにしました。
次回のお打ち合わせの宿題です。
大まかな間取りやプランについては1,2回で決まることが多く、それ以降は内装仕上げ、造作、電気・照明、インテリアなどなど打ち合わせが盛りだくさん!
打ち合わせの都度、磨きがかけられて、最終的なプランができます。

>〈最終的にできたプラン〉
最終的決定したのは、〈プランC〉をアレンジしたプラン。
このプランにたどり着いたキーワードは「臨機応変さ」!
冒頭にも書きましたが。このお部屋のテーマは「快適に引き籠れて、キュウクツに感じないお部屋」。
プランを考える上で、 1番の課題は「解放感とプライベート性の両立」でした。
「インドアな趣味を息苦しくならずにお家で満喫したい→自然光の入る広々としたリビングダイニング」
というのがいちばんの条件。
でもおひとり暮らしのお客様ためのお部屋なので、物件自体が約40㎡とコンパクト。
そのため、リビングダイニングに十分にスペースをとると、ワンルームのような間取りになり、
「配達などの来客の際、玄関からお部屋全体が見られてしまう…」
「冷暖房の効きが悪くなってしまう…」
「キッチンも同じ空間内なので、ベッド回りまで匂いや油飛びが気になるのでは…」
と悩まれていました。
解決したのは、3枚引き込み戸。

玄関ホールが部屋を圧迫することのないように、ベッドルームやリビングダイニングを仕切る壁を3枚引き込み戸に置き換えたことで、必要な時は閉めて、普段は思い切り開けて解放感も味わえるプランになりました。


広々過ごしたいときには扉は壁の中に収納でき、部屋として壁が欲しいときは引き戸で仕切れる臨機応変さ!
お客様は「欲張りな間取り二重生活を実現できて大満足」と喜んでくださいました。
また、より解放感を味わえるように天井を高くしたり、断熱や防音のために二重窓を設置したり、おうち時間を満喫できる仕掛けを用意しました。


他にも、お客様の趣味のカメラ機材やたくさんあるお洋服をごちゃごちゃさせずにすっきり収納できるよう、クローゼット収納を増やし、本や雑誌、Blu-rayを飾りながら整理できる造作棚をキッチン横に設置しました。
このように、ご提案のプランはヒアリングをもとに設計スタッフが考えてつくっています。
使い勝手や、収納が足りるかなどの生活イメージの視点のほか、断熱や冷暖房などのご要望によってはプランに影響が出る場合も。
特にキッチンやお風呂の形、サイズが変更になると、確実にプランを変えなくてはいけないので、前もってサイズ感をショールームで体感しておくなど、事前に確認しておくのがスムーズな打ち合わせのコツ。
打合せにおいて、些細なことでも、設計担当にお話いただけるように、私たちも心がけています。
〈プラン打ち合わせ時に必要なことリスト〉
・空間の広さを良く確認してみましょう。
・断熱対策、遮音対策などもプランに影響することがあるので確認しておきましょう。
⇒○快適に暮らす工夫③ ~断熱材編~
⇒○床と遮音性(1)
・キッチン、お風呂、トイレ、洗面台などの水回りはショールームで確認しましょう。
⇒○キッチンの種類いろいろ
⇒キッチン選びのポイント
⇒お風呂のサイズ、種類
⇒トイレの種類
⇒洗面台の種類、洗面室のレイアウト
・収納の使いやすさ、イメージをプラン上で生活をイメージしながら確認しましょう。
・壁にものをつけたい、間接照明をつかいたいなどプランに関わること
⇒照明器具の種類
⇒○リノべアイテム紹介【照明~LEDと白熱電球】
⇒○壁をデザインする ~いろんなアイデア編~
・扉、ドア、室内窓など建具の確認。
⇒建具の種類いろいろ
⇒室内窓
○快適に暮らす工夫 ① ~風通しの大切さ~
⇒開口の種類
プランと一緒にお出ししているのがパースやプレゼンテーション資料、どんなものなのかご紹介します。
まずパースとは、室内を立体的な絵にしたもの。
立体的に表現することで 、全体的な壁、床、天井と、空間のイメージがとても良くわかります。
↓こんな感じです。

>〈パースイメージ例〉
そしてお見積りのご説明を↓のようなプレゼンテーション資料やカタログ、実物サンプルを見ながらご説明しています。



>〈プレゼンテーション資料 例〉


>〈お打ち合わせ風景〉
実物のサンプルを見たり触ったりして、イメージに近い床材を探したり、違う素材を選んでコストダウンしたり…!
「床はこのくらいの色がいい」「寝室の床はタイルにしたい」「キッチンはこんなタイルを貼りたい」などなどイメージが膨らみます。
こんな感じでお打ち合わせは進んでいきます。
プランのお打合せはリノベーションのベースになるのでとても重要です。
賃貸にお住まいの方は、今のキッチンや、お部屋などサイズ感を比較しても良いですし、既にお持ちの家をリノベーションの方は今の家と比較するのが一番良いかもしれませんね。
ショールームや完成現場など、プラン打ち合わせの前に見学してみたりするとより良いと思います。
プランが決まってきたら、次は電気配線関係のお打ち合わせ。
照明計画、空調計画などと合わせて考えていきます。
関連記事
〇物件を見るとき必携!リノベのプロがこっそり教える寸法豆知識 <平面編 その1>
内見のときは今住んでいる方の家具や荷物が沢山おいてあったり、
逆に何もないガランとしたお部屋だったり、なかなか「広さ」のイメージがつかめません。
リノベーションのプロは内見にいくときにさまざまなポイントを見ているもの。
その中であなた自身も今からすぐ使える「寸法」の豆知識をこっそりお知らせします。
「理想の暮らし」は「寸法」によって「現実の毎日」にぐっと近づきます!
壁を活かしてデザインにしたい、インテリアの雰囲気を変えたい。
そんなときに一番身近なのは壁紙。実は「壁紙」といってもバリエーションはものすごく豊富。
あとで知らなかった!なんてことが無いように、リノベ前に壁紙の種類を是非知っておいて頂くきっかけとなればと思い、いろんな壁紙と、私が使ってみて面白かった壁紙などをご紹介していきます!
リノベ会社ってどんなサイトみてもどこも同じに見える!
どうやって選べばいいかわからない!
そんなあなたに会社選びのヒントをこっそりお知らせします。



