デザインの“好き” と “暮らしやすさ”をつなぎ合わせて
専有面積: | 80m2 |
|---|---|
築年: | 2001年築 |
所在地: | 埼玉県八潮市 |
家族構成: | family |
費用: | 1,021万円 |
Outline
Story

木の素材感が印象的なリビングダイニング。
いろいろな素材を組み合わせながら、お客様のイメージを再現していきました。
もちろんデザイン性だけではなく、使いやすさも妥協せずに工夫しています。
ご夫婦のセンスが詰まったお住まいです。
◎購入が決まった物件のリノベーション-お客様からのご要望
○キッチンは使いやすくかっこよく。ステンレス天板を取り入れたい。
○玄関にベビーカーが入れるように。シューズクローゼットもほしい。
○将来のライフスタイルの変化に合わせて収納や部屋の区切り方に自由度を持たせたい。
◎設計ポイント
○キッチンの仕様とデザイン

・より使いやすく
→手持ちのキッチン家電(コーヒーミル、トースター、レンジ、炊飯器など)すべてを使いやすく配置できるように設計。奥様ご希望の食洗機も設置。
・かっこよく
→ステンレス、コンクリート、木の質感をブレンド。
キッチンのステンレス天板、ダクトあらわし、天井と梁のコンクリートというクールな印象とは対照的に、造作棚やカウンターには木の質感をいかし、ダイニング部分の天井にはクロスを貼ることで全体の雰囲気をマイルドに。強くなりすぎないスタイリッシュさを実現。
○玄関のシューズクローゼット



元の2倍程度、シューズクローゼットを広げたので、ベビーカーでそのまま入ることができるように。
壁には有孔ボードを取り付けることで、壁面収納も可能になりました。
廊下のウォークインクローゼット周りは、あえて扉をつけずにオープンスペースにしたので、空間の繋がり方が特徴的になっています。
○ライフスタイルの変化に合わせる

・お子様が小さいうちはキッズスペースを家族みんなの主寝室に。
将来的には、子ども部屋として区切れるように、下地を準備。
・収納は生活スタイルによって、使い方が変わります。
その都度使いやすいように、可動タイプの収納を多く取り入れました。
○「セミスケルトンリノベーション」を採用

前の居住者さんがきれいにお住まいだったので、トイレやお風呂などの設備はできるだけ再利用する形で節約リノベ。
その代わり、お気に入りのタイルを使ったり、使いやすいように造作棚を取り付けたり。
デザインと暮らしやすさに予算を広げることができました。
◎物件が決まるまで

2020年5月にオンライン相談からスタートしたお施主様。
「元々は、お友だちの紹介でリノままを知り、いろいろな事例をみて気に入ったので相談してみることにしました」とのこと。
※お友だちの事例

>リノベーション事例『団地のなかの小学校』 | リノまま
当時はマンションに限らず、戸建てやログハウスなども広く検討されていました。
しかし戸建てだと、内装だけでなく外壁などにも工事費がかかるため、結構費用かさむ…ということでマンションを探すことに。

リノベーションも最初からやろうと決めていたわけではなかったそう。
奥様「元々、リノベーションには興味がある程度でしたが、いろいろなデザインを見ているうちに、自分たちもやりたい!という気持ちになってきました。新築の家も内見しましたが、少し味気なく感じ、気にいるものが見つからなかったこともリノベーションを決意した理由のひとつです。新築を買うなら賃貸でいい。せっかく自分たちの家を持つなら、セレクトした好きなものに囲まれて暮らしたい!と思うようになりました。」
当時は調布の賃貸にお住まいで、奥様のご実家の草加付近で物件探しがスタートしました。
6月になって初めて新宿御苑にお越しになり、早速物件の内見にご同行。
いくつか物件を見学されて、8月についに決定されたのは、4件目に内見した物件。
2Fでバルコニーが広く、南側がひらけていて日当たりが良いことも決め手になりました。
ライフプランは事前に検討されていたので、スムーズに資金計画も進めることができました。
物件自体は前の居住者さんがきれいにお住まいだったので、トイレやお風呂などはそのまま使うことで、設備費用を抑えつつ、好みのデザインや暮らしやすさにリノベーションの予算を使っていこうということに。
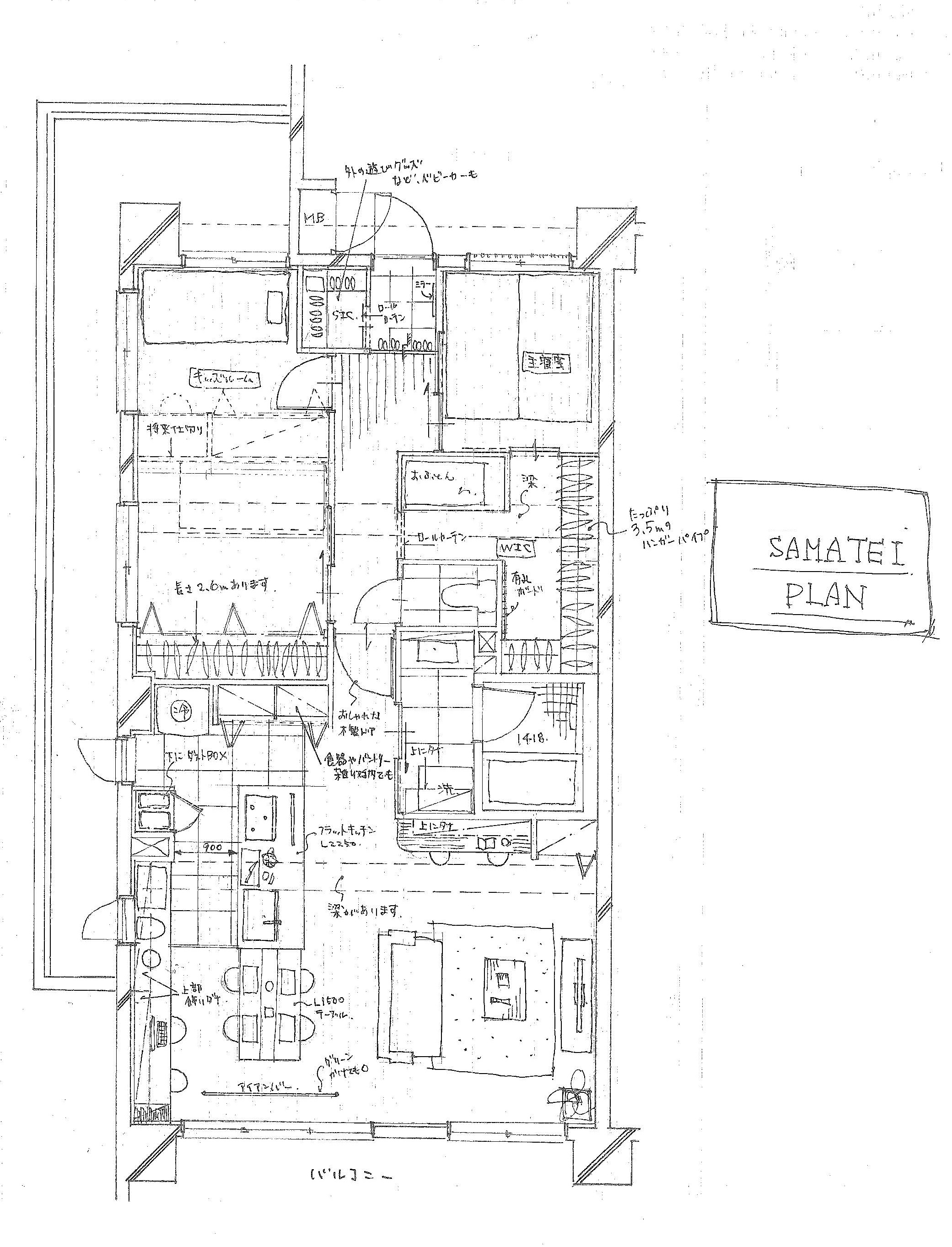
見学後にお出ししたラフプランがこちら。
「これでいこう!」ということでついに物件契約。
このラフプランをもとに、リノベーション設計を進めていきました。
◎かっこよさと使いやすさの両立キッチン


キッチンには奥様が希望されていたステンレスの天板を。
これだけでもキッチンは、ぐっとかっこよくなりますね。
そのほかにもこだわりのデザインが。


天井と梁は躯体あらわしでコンクリートの素材感をいかし、ダクトも露出してクールな印象に。
一方、ダイニング側の天井にはクロスを貼ったことで、食卓には柔らかな雰囲気をプラス。
キッチン家電のための造作棚や造作カウンターの木の質感も、お部屋をあたたかな印象にしてくれています。
ちょうどいい塩梅で、強くなりすぎないスタイリッシュさを実現しました。
キッチンの造作棚は、お手持ちの家電やゴミ箱の置き場所などを想定して設計したので、使い勝手もばっちり。

奥には食器棚・パントリーとして使える収納も設置しました。
中は、入れるものによって高さを変えられる、可動棚になっています。
引き戸をつけたことで場所を取らず、ごちゃごちゃしがちなキッチンまわりもすっきり片付けることができます。
◎素材のセレクト-バラバラな統一感

素材選びにあまり迷うことはなかったというお施主様。
イメージを設計担当へ伝え、それに合うものをいくつか提案してもらい、セレクトしていくという形で、スムーズに決まっていきました。
特にセレクトのセンスが感じられるのは、リビングダイニング。
フローリングや扉、カウンターなどの木の色をあえて揃えずに、色味はバラバラだけど喧嘩せずに一つの雰囲気にまとまっている、というラインを狙いました。
実はダイニングにあるテーブルは、元々そんなイメージからご主人が手作りされたものだそうで、部屋の素材も同じように考えていったとのこと。
絶妙なバランス感覚で、構成されていますね。

メインの木材である床は、アカシアの無垢フローリング。
木の表情が豊かなので、他の場所に違う種類の木材を使っても、ちぐはぐな印象にならず、組み合わせやすいです。

テーブルの奥にある、キッチンの造作棚やワークスペースの造作カウンターは、初めは集成材(細い角材を合わせて接着した板)でプランしていましたが、あえて合板(ベニヤ板を複数貼り合わせて作られ、表面には木目のシートや、木を薄くスライスしたものが張り付けられている板)の方が雰囲気に合うということで変更されました。
将来的には、お子様の勉強机にして、ご両親がリビングで見守れるような環境を作りました。


収納の扉とリビングのドアもまた違った素材。
収納扉は、元々イメージしていたツールボックスのものにデザインが近く、より安いものを設計担当が提案したことで、価格を抑えることもできました。


木の素材以外にも、印象的なのは緑のタイル。
洗面所とリビングダイニングに同じタイルを使っているのですが、あわせる木の色などをかえて、全く違ったテイストに仕上がっているのがポイントです。
◎暮らしはじめて変わったこと

リノベーションを終えて、新しい住まいでの生活がはじまり、暮らしにも変化があったとお話ししてくださいました。
旦那様「一番大きな変化は、週末に料理するのが増えたことです。キッチンが広くなったことや快適に作業できることはもちろんですが、なによりかっこいいキッチンなのでやる気が出ます!平日の在宅ワークの際も、以前は生活音が気になっていたのですが、リビングから離れたところに個室の作業部屋を作ったことで、集中して仕事ができるようになりました。」
奥様「雨が続く時期も、子どもたちと家でいろんな遊びができるのが嬉しいです。家の中にいても、窮屈さを感じないので、ストレスなくおうち時間を過ごせています。」
お気に入りの素材や暮らしやすさのための工夫を、パッチワークのように散りばめてつくっていった住まい。
これからお子様がどんどん大きくなって、勉強机にふたり並んで宿題をする日、寝室が別々の部屋になる日、お子様ふたりそれぞれの部屋をつくる日…。
ご家族の暮らしの変化にこれからも寄り添っていけたらいいなと感じるお住まいでした。
Price
-
基礎工事
仮設工事、解体工事、木工事、給排水工事、電気工事、ガス工事
約465万円
-
住宅設備機器
住宅設備機器(キッチン、洗面、水栓など)
約151万円
-
材料費
建具工事、塗装工事、左官・タイル工事、内装工事、照明器具、空調設備工事、ガス工事
約325万円
-
収納・造作工事
収納・造作工事(造作棚、LDKキッチンカウンタ―など)、物干しバーなど
約80万円
工事費総額(税込)
約1,021万円
※工事費は竣工時点の税込額となっています。

